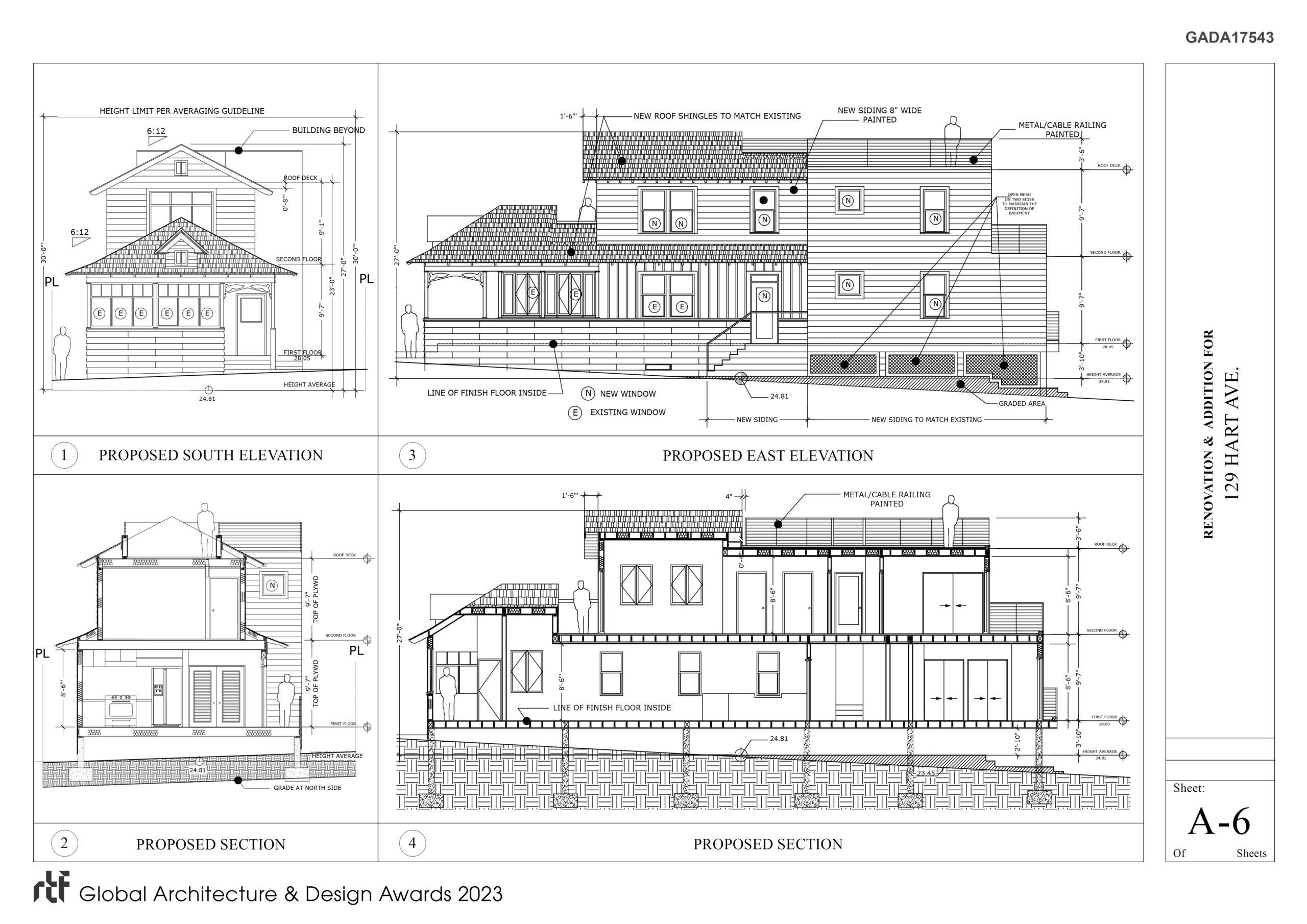
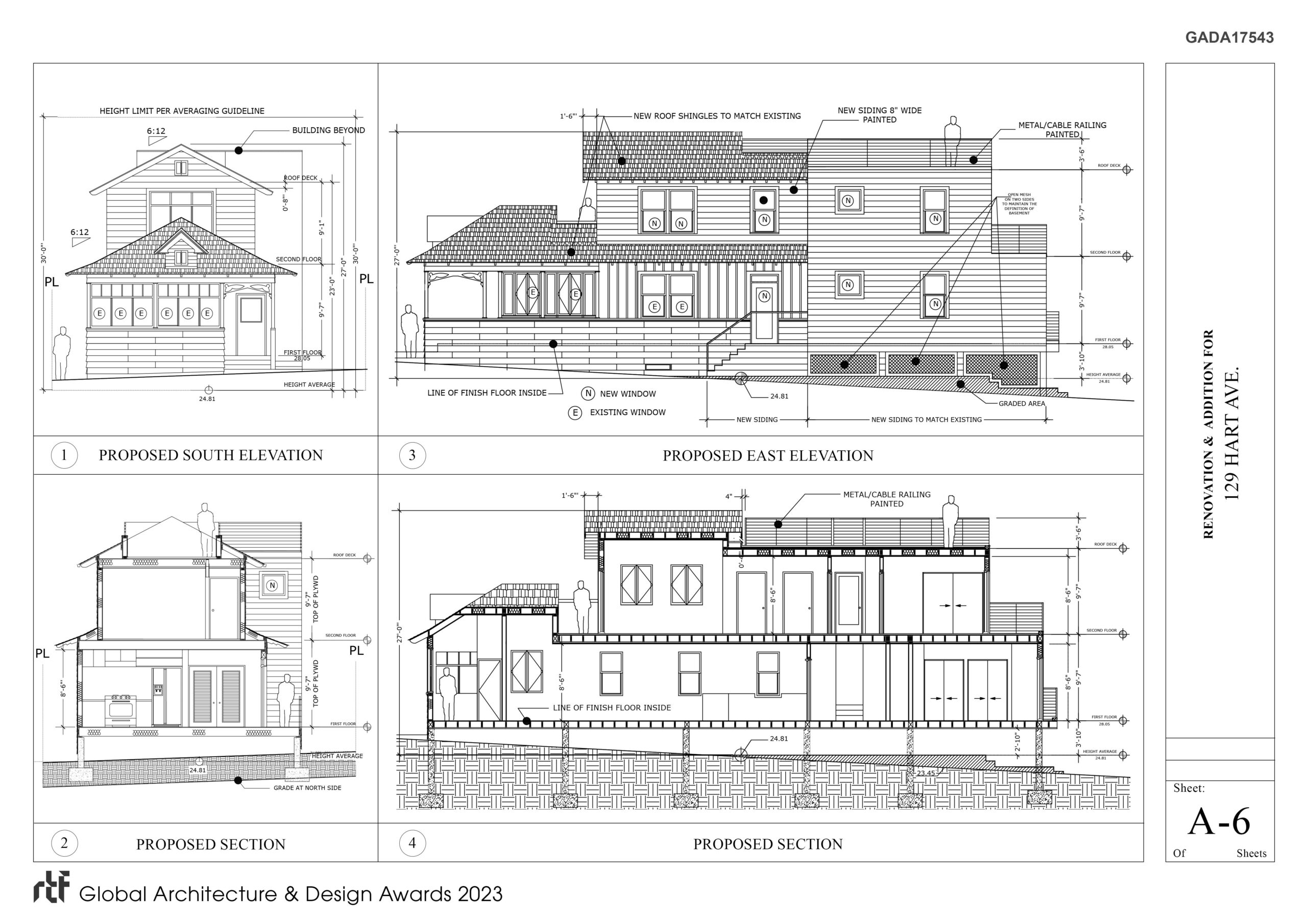
The major tasks of this project were to renovate the existing first floor and add a new second floor as well as roof observation deck. This single family residence was built between the years of 1904-1907.
Global Design & Architecture Design Awards 2023
Third Award | Private Residence (Small-Medium) (Concept)
Project Name: 129 Hart Ave., Santa Monica, California, USA
Category: Private Residence (Small-Medium) (Concept)
Studio Name: McClellan, Badiyi & Associates Architects
Design Team: Bahram Badiyi – Principal in charge of design, Robert McClellan, Cindy Moreno, Violet Dawi
Area: Building area-2 story: 2,303 Square Feet
Year:2023-2024
Location: Santa Monica, California, United States
Consultants: Calcivic Structural Engineering
Photography Credits: Bahram Badiyi
Render Credits: ©Shanghai Halo Architectural Visualization Co. Ltd

©Bahram Badiyi
The building is the oldest surviving structure of its kind in the neighborhood that has remained virtually intact and is part of the City of Santa Monica’s Historic Registry. It is and forever will be an honor for our firm to have been able to add to this historic building. None of the original drawings of the project existed in any archive thus the project was field measured extensively in order to reconstruct the floor plans and elevations of existing building.

©Bahram Badiyi
During the field measurement and study of the dimensions, both vertical and horizontal, a very sophisticated system of proportions was discovered. Following the existing proportions as well as the original design intent, the building’s architectural components, the new addition was developed. Project went through several renditions to satisfy the client needs as well as that of the City’s Design Advisory Board and City of Santa Monica’s Conservancy Society.

©Bahram Badiyi
Use of correct proportions as well as architectural vocabulary of the existing building allowed the project to come close to what the original architect would have done to add a second floor. The project will maintain and restore the windows and siding to its original design. The project now offers a second floor with two bedrooms and amenities. Project also now offers a new roof/deck that allows for an ocean view.
- ©Bahram Badiyi
- ©Bahram Badiyi
- ©Bahram Badiyi









