Recognizing that hospitals can be such uncomfortable places for adults to visit, medical institutions presently are created more pleasant and welcoming environments. We therefore explored what might be possible to do the same for children.
Architecture, Construction & Design Awards 2020
First Award | Interiors Healthcare / Wellness (Built)

| Project Details | |
| Project Name: | EKH CHILDREN HOSPITAL |
| Studio Name: | IF (Integrated Field) |
| Design Team: | IF (Integrated Filed) |
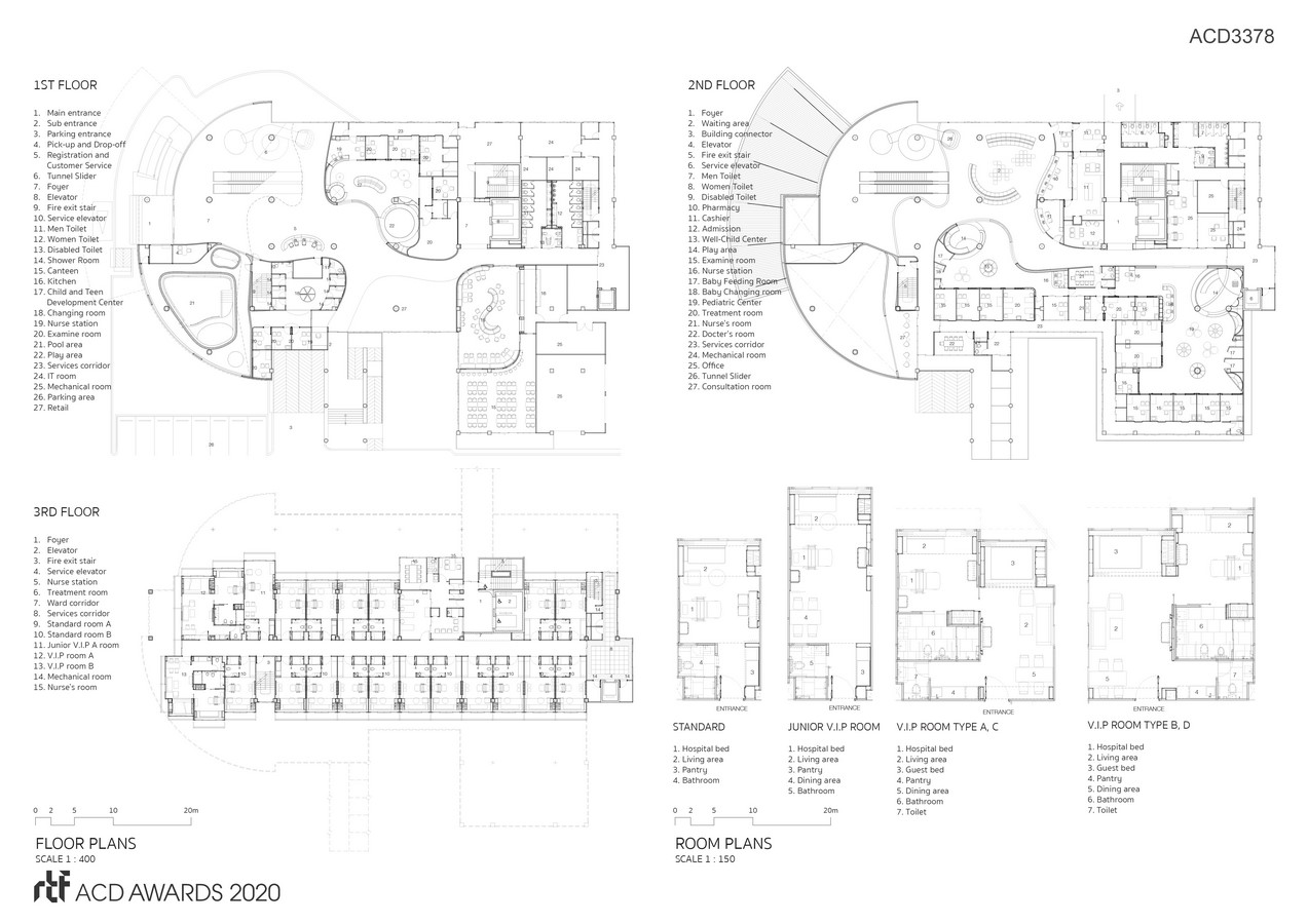
| Area: | Interior 6,000 sq.m. |
| Year: | 2019 |
| Location: | Samut Sakhon, Thailand |
| Photography Credits: | Ketsiree Wongwan |
| Other Credits: | Architect: S:CSB Co.,Ltd |
| Landscape Designer: S:CSB Co.,Ltd | |
| Lighting Designer: Nopporn Sakulwigitsinthu | |
| Construction/Builder: Adisorn Construction Co.,Ltd | |
| Structural Engineer: S:CSB Co.,Ltd | |
| Services Engineer: S:CSB Co.,Ltd | |

©Ketsiree Wongwan
With children’s mindset, design approach of EKH CHILDREN HOSPITAL is to make the project a ‘fun’ place by incorporating many components of playground design. We use many elements as giant slider situated right at the front of the entrance hall, transforming waiting area of each clinic into a playground, indoor swimming pool with bunch of artificial clouds floating atop.
The children dimension is created using various physical shapes, colors and symbols materialized from the design language that is made up of delicately curved lines and deliberately avoids the perfect geometric forms. The design renders the aesthetics, which reminisces the way one continues drawing of a curved line without focusing on whether it will be able to form a perfect circle or not, and it ends up bringing a sense of freedom to the young users’ experience of the space. These lines are formed into the arches constructed above the doorways and seating areas with the sizes calculated to correspond with children’s body proportion, creating a built environment that truly accommodates children’s behaviors and preferences.

©Ketsiree Wongwan
The pastel color tone encourages the children’s use of imagination (as a kid, we all create our own imaginary world when we are experiencing a space for the first time). We believe that children will be able to enjoy the spaces inside of the hospital according to their own personal imagination and individually develop an experience through their interactions with the curated spatial program.
A scenario is designed and constructed near the pharmacy counter as a part of the layout of the ‘waiting area’, which embraces the ‘play space’. The program enables interactions between parents and children while allowing the adults to watch over their little ones during the wait. The use of indirect light with all the hallways of the hospital ensures that the young patients won’t be disturbed by the discomfort of excessive brightness.

©Ketsiree Wongwan
The hospital offers four room types, categorized not as a standard, special or suite room, but in the friendlier names of Whale, Turtle, Lion and Rabbit Constellation. Each room is decorated in a different color and installed above the bed is a glow-in-the-dark constellation with a customized lamp to provide both a standard lighting and the level of illumination that is suitable for a good night’s sleep.
As we adults find ourselves amazed if not a bit jealous by the mesmerizing variety and development of children’s toys or even snacks these days, EKH Children Hospital will change everyone’s perception about what the space of a children’s hospital can be.
- ©Ketsiree Wongwan
- ©Ketsiree Wongwan
- ©Ketsiree Wongwan








