Global Architecture & Design Awards 2018
Honorable Mention | Private Residence (Built)

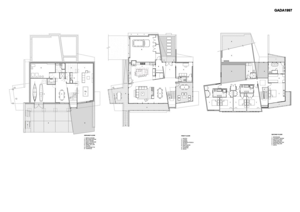
| Project Details | |
| Architects: | David Jay Weiner Architects |
| Team Members: | David Weiner, Stephen Taylor, Andrew Saunders |
| Country: | United States |

©David Jay Weiner Architects

©David Jay Weiner Architects

©David Jay Weiner Architects
- ©David Jay Weiner Architects
- ©David Jay Weiner Architects
- ©David Jay Weiner Architects








